Оренда невеликого комерційного приміщення в розвиненій локації (№ 15-122-094)
Ціна: 450 грн. + комунальні

Адреса: Бирюзова Маршала ул., Полтава, Полтавська, Київський, Браїлки
Характеристики
| Ціна: | 450 грн. + комунальні |
|---|---|
| № об'єкта: | 15-122-094 |
| Тип: | торгівельні площі, кафе, бар, ресторан, об'єкт сфери послуг, інше |
| Поверх: | 1 / 1 |
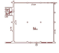
| Площа: | 316 м2 |
| Додатково: | окремий вхід, кондиціонер, парковка |
Опис
Оренда невеликого комерційного приміщення в розвиненій локації.,
в довгострокову оренду торгове приміщення площею 316 м.кв. роташоване в торгово-офісному центрі
(по маршруту кільцевого автобуса). Є можливість розширення торгової площі. Зручний підїзд та паркування,
червона лінія. Наявні всі необхідні комунікації. До основного приміщення є підсобне приміщення, санвузол, душова. Поряд також є склади (360 м.кв. та 725 м.кв.),
які є продовженням цього торгового приміщення, офісні приміщення. Поряд продуктовий супермаркет АТБ,
фірмова торгівля 'Полтавпиво', кавярні, мясний магазин Салтівський, аптека, магазин електро-бензоінструменту,
виробів з металу, автозапчастин та акумуляторів, електротоварів, дверей та вікон, рекламних пластиків та плівок.
Діючий торгово-офісний центр, є місця для цілодобової парковки автомобілів.
Смачно годує заклад громадського харчування 'Полтавські галушки' та DONER Маркет..
Відстань до найближчого міста: У місті;
Розташування: Фасадне приміщення;
Тип обєкта: Торгово-офісний центр;
Cанвузол: Так;
Опалення: Індивідуальне електро;
Ремонт: Так;
Комунікації: Асфальтована дорога, Центральна каналізація, Електрика, Центральний водопровід;
Інфраструктура (до 500 метрів): Відділення банку, банкомат, Аптека, Житловий масив, Офіси, бізнес центр, Стоянка, парковка, гараж, Відділення пошти, Залізнична станція, Ресторан, кафе, бар, Навчальні заклади, Супермаркет, ТРЦ, Транспортна розвязка;

















