Оренда офісне приміщення. Центр. Объект № 1542095 (№ 1-542-095)
Ціна: 150 грн. + комунальні

Характеристики
| Ціна: | 150 грн. + комунальні |
|---|---|
| № об'єкта: | 1-542-095 |
| Тип: | торгівельні площі, об'єкт сфери послуг, інше |
| Поверх: | 1 / 2 |
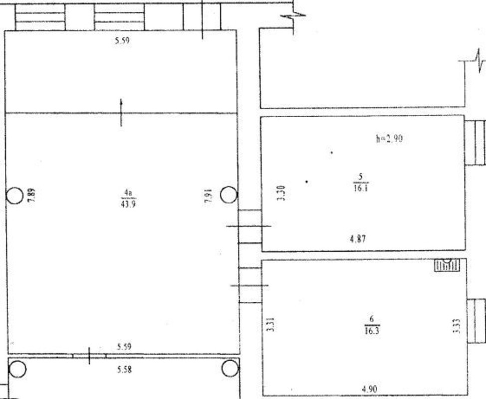
| Площа: | 130 м2 |
| Додатково: | окремий вхід, парковка |
Адреса: Полтавська, Полтава, Шевченківський (Жовтневий), Центр, Пушкина ул.
Оренда офісне приміщення. Центр. Загальна площа 77 кв. м. Меблі лишаються за домовленністю. Опалення індивідуальне (електричне).
Центр, вул. Пушкіна, Березовий сквер.
Oбъект № 1542095
Услуги агенства 50% единоразово (без предоплат и авансов), только по факту подписания договора.








