Оренда помещения. код №1576291 (№ 1-576-291)
Ціна: 4 500 грн. + комунальні

Характеристики
Ціна: | 4 500 грн. + комунальні |
---|---|
№ об'єкта: | 1-576-291 |
Поверх: | 3 / - |
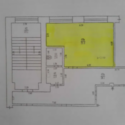
Площа: | 23 м2 |
Додатково: | парковка |
Адреса: Полтавська, Полтава, Шевченківський (Жовтневий), Фурманова, Европейская
Оренда нежитлових приміщень. , 3 поверх.
. Загальна площа 22,2 кв. м. Можливо під офіс, косметичний кабінет, тощо.
Простора та світла кімната, свіжий ремонт, санвузол та вода на поверсі, електроенергія – окремий лічильник.
Доступ до кабінету цілодобовий – Вам не доведеться підлаштовувати свій графік роботи. Зручна автостоянка. Свіжий ремонт.
Гарне місце розташування!
Ціна 4 000 грн./міс.
Електроенергія, вода та опалення оплачуються окремо.
АН'Галерея Недвижимости'