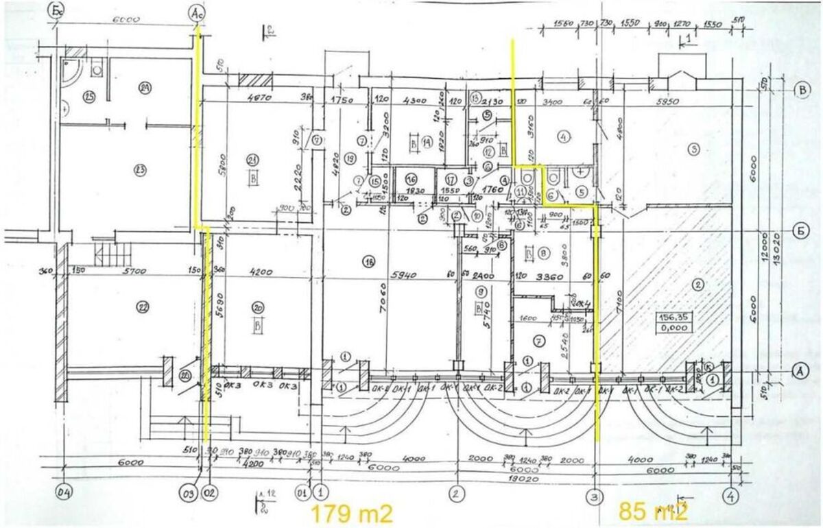
Приміщення для бізнесу 178 м2 (№ 1-576-872)
Ціна: 125 грн.

Характеристики
| Ціна: | 125 грн. |
|---|---|
| № об'єкта: | 1-576-872 |
| Тип: | торгівельні площі, кафе, бар, ресторан, об'єкт сфери послуг, інше |
| Поверх: | 1 / 1 |
| Площа: | 178 м2 |
| Додатково: | парковка |
Адреса: Полтавська, Полтава, Шевченківський (Жовтневий), Центр, Шевченка
Тип нерухомості: Магазин, салон
Рік побудови / здачі: 1980 - 1989
Cанвузол: Так
Опалення: Централізоване
Ремонт: Ні
Комфорт: Кондиціонер, Пожежна сигналізація, Гостьовий паркінг, Паркувальне місце, Сигналізація, Госп. приміщення, комора, Грати на вікнах
Комунікації: Асфальтована дорога, Центральна каналізація, Електрика, Вивіз відходів, Центральний водопровід
Інфраструктура (до 500 метрів): Відділення банку, банкомат, Автовокзал, Центр міста, Аптека, Лікарня, поліклініка, Житловий масив, Ринок, Офіси, бізнес центр, Стоянка, парковка, гараж, Відділення пошти, Ресторан, кафе, бар, Навчальні заклади, Супермаркет, ТРЦ, Транспортна розв'язка
Окреме нежитлове приміщення для широкого спектру бізнесу. Власна стоянка для клієнтів, лічильник тепла, можливе обладнання літнього майданчика, перепланування, оренда частини приміщення, три фази 20 кВт. і т.д.
АН 'Галерея Недвижимости'
Об'єкт № 1576872



