Продаж 2к квартири 40 кв. м код №212380802 (№ 212-380-802)

Ціна: 40 000 $
Характеристики
Ціна: | 40 000 $ |
---|---|
№ об'єкта: | 212-380-802 |
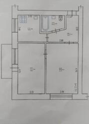
Кімнат: | 2 суміж |
Поверх: | 5 / 5 |
Площа: | 40 / 26 / 6 м2 |
Санвузол: | 1 роздільний |
Балкон: | балкон |
єОселя/Іпотека: | + |
Адреса: Полтавська, Полтава, Шевченківський (Жовтневий), Центр
Продаж 2 кімнатна квартира в цегляному будинку. Зроблений ремонт (замінені труби, електромережа). Квартира продається з меблями та технікою, 2 кондиціонери, є підвал.В будинку замінені труби, зроблено ремонт під'їздів, перекрита криша Документи готові до продажу.
АН'Галерея Недвижимости'