Новобудова! 3 кімнатна квартира-дуплекс з видом на ставки + комора Сади - 2 (№ 212-999-484)

Ціна: 80 000 $
Характеристики
Ціна: | 80 000 $ |
---|---|
№ об'єкта: | 212-999-484 |
Кімнат: | 3 |
Поверх: | 9 / 9 |
Площа: | 75 / - / 20 м2 |
єОселя/Іпотека: | + |
Адреса: Полтавська, Полтава, Шевченківський (Жовтневий), Сади 2
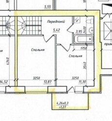
Новобудова! 3 кімнатна квартира-дуплекс з видом на ставки + комора.Продам трьох кімнатну квартиру у новобудові на Садах-2. Квартира складається з двох рівнів: на першому розміщені передпокій (5,93 м2), гостьова кімната (17,81 м2), кухня (11,9 м2) та санвузол, на другому - дві зручні спальні (13,78 та 11,3 м2) та велика ванна кімната. Санвузол на першому рівні можна дообладнати душовою кабінкою. Загальна площа: 75,41 метри. Квартира на дев?ятому та десятому поверхах вже зданого будинку (зданий у 2023 р.), всі документи оформлені. В будинку вже підключені газ, електрика, вода та каналізація, є лічильники. Індивідуальне газове опалення - котел вже встановлений. На території будинку є відеоспостереження. Будинок цегляний із гарною енергоефективністю. Вікна виходять у двір, з балкона є вид також і на ставки. До квартири додатково йде власна комора в підвалі, також з документами. Власник. Можливий розумний торг. Звертайтеся за додатковою інформацією, зв?язок через OLX u002FWhatsApp u002F Viber..Вид обєкта: Новобудова;Тип будинку: Житловий фонд від 2021 р.;Тип стін: Цегляний;Клас житла: Комфорт;Планування: Багаторівнева;Cанвузол: 2 і більше;Опалення: Індивідуальне газове;Ремонт: Після будівельників;Меблювання: Ні;Побутова техніка: Без побутової техніки;Мультимедіа: Без мультимедіа;Комфорт: Госп. приміщення, комора, Грузовий ліфт, Ліфт, Відеоспостереження;Комунікації: Електрика, Газ, Асфальтована дорога, Центральний водопровід, Центральна каналізація;Інфраструктура (до 500 метрів): Ринок, Зупинка транспорту, Магазин, кіоск, Відділення пошти, Дитячий садок, Супермаркет, ТРЦ, Школа, Дитячий майданчик, Лікарня, поліклініка, Аптека, Ресторан, кафе, Парк, зелена зона, Відділення банку, банкомат;Ландшафт (до 1 км.): Парк, Озеро;