Продаж 2 кімнатної квартири (№ 212-999-960)

Ціна: 32 000 $
Характеристики
Ціна: | 32 000 $ |
---|---|
№ об'єкта: | 212-999-960 |
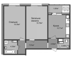
Кімнат: | 2 розд |
Поверх: | 9 / 10 ліфт |
Площа: | 69 / - / 12 м2 |
Санвузол: | 1 сумісний |
Балкон: | балкон |
єОселя/Іпотека: | + |
Адреса: Полтавська, Полтава, Шевченківський (Жовтневий), Боженка, Параджанова
2К квартира після забудовника.
МОЖЛИВИЙ ТОРГ! Продам простору 2к квартиру на 9 з 10 поверхів
новобудови з утепленим фасадом. Параджанова
Термін здачі кінець 2025 року. Індивідуальне газове опалення, пасажирський та вантажний ліфт..
Вид обєкта: Новобудова;
Тип будинку: Житловий фонд від 2021 р.;
Назва ЖК: Параджанова;
Тип угоди: Банківський кредит, Розстрочка від банку, Переуступка;
Тип стін: Панельний;
Клас житла: Економ;
Планування: Роздільна;
Cанвузол: Роздільний;
Опалення: Індивідуальне газове;
Ремонт: Після будівельників;
Меблювання: Ні;
Інфраструктура (до 500 метрів): Дитячий садок, Ресторан, кафе,
Відділення банку, банкомат, Дитячий майданчик, Школа, Відділення пошти,
Парк, зелена зона, Магазин, кіоск, Аптека, Зупинка транспорту;