Продаж 2-кімнатної квартири, Сади-1, житловий стан Об'єкт № 213-012-898 (№ 213-012-898)

Ціна: 43 500 $
Характеристики
Ціна: | 43 500 $ |
---|---|
№ об'єкта: | 213-012-898 |
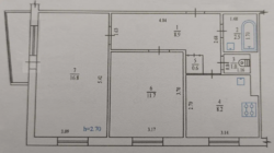
Кімнат: | 2 розд |
Поверх: | 7 / 9 ліфт |
Площа: | 52 / - / 8 м2 |
Санвузол: | 1 роздільний |
Балкон: | балкон |
єОселя/Іпотека: | + |
Адреса: Полтавська, Полтава, Шевченківський (Жовтневий), Сади 1
Продаж 2-кімнатної квартири, Сади-1, житловий стан
Гарна зручна 2-кімнатна квартира, 7-й поверх 9-поверхового будинку,
у тихому районі з вікнами на двір, житловий стан. Сучасні пластикові вікна, підвіконня, пластикові труби,
біметалічні батареї, засклений балкон, наружне утеплення стін,
велика комора для господарчих потреб поруч на етажі.
Документи в наявності.
Вид обєкта: Вторинний ринок;
Тип будинку: Житловий фонд 80-90-і;
Тип угоди: Переуступка;
Тип стін: Панельний;
Клас житла: Комфорт;
Планування: Роздільна;
Cанвузол: Роздільний;
Опалення: Централізоване;
Ремонт: Житловий стан;
Меблювання: Так;
Побутова техніка: Плита, Холодильник, Пральна машина;
Комфорт: Ванна, Балкон, лоджія, Ліфт, Госп. приміщення, комора;
Комунікації: Газ, Центральний водопровід, Електрика, Центральна каналізація, Вивіз відходів, Асфальтована дорога;
Інфраструктура (до 500 метрів): Дитячий садок, Школа, Зупинка транспорту, Магазин, кіоск, Супермаркет, ТРЦ,
Парк, зелена зона, Аптека, Лікарня, поліклініка, Ресторан, кафе, Відділення пошти, Відділення банку, банкомат;
Ландшафт (до 1 км.): Водосховище, Озеро, Парк;