Дворівнева квартира на Леваді у новобудові (№ 213-043-083)

Ціна: 115 000 $
Характеристики
Ціна: | 115 000 $ |
---|---|
№ об'єкта: | 213-043-083 |
Кімнат: | 4 |
Поверх: | 9 / 10 |
Площа: | 128 / - / 22 м2 |
єОселя/Іпотека: | + |
Адреса: Полтавська, Полтава, Подільський, Левада
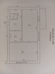
Ексклюзивна дворівнева видова квартира від власника 128 м.кв..
ЕКСКЛЮЗИВНА ДВОРІВНЕВА ВИДОВА КВАРТИРА! Чотирьохкімнатна квартира на леваді, два поверхи. У квартирі зроблено перепланування на етапі будівництва, яке оформлене у техпаспорті. На першому поверсі знаходиться санвузол, кімната під гардеробну таu002Fабо ванну кімнату, кухня-студія, а також загальна кімната. На другому поверсі великий суміжний санвузол, дві дитячі спальні та велика спальня з можливістю влаштування гардеробної. Кухня та одна дитяча має вихід на власний балкон. З вікон квартири відкривається приголомшливий вид на прирічковий парк та річку Ворскла! Квартира обладнана автономним опаленням, встановлений котел, двохтарифний лічильник електрики. В подарунок додамо просторе підсобне приміщення ( комора) між 8 і 9 поверхом. Будинок повністю зданий, вже частково заселений, знаходиться у закритому ( огороженому) дворі, має автоматичні ворота та хвіртки на ключ-доступах. Поруч з будинком знаходиться 2 школи, садочки державні та приватні, багаторівневий критий паркінг, кафе, магазини, лікарні державні та приватні, стоматологічні клініки, в радіусі 500м 4 супермаркети: Сільпо, Spar, Маркетопт, АТБ, найближча зупинка транспорту на відстані 1хв ходьби. Тобто вся необхідна для комфортного проживання інфраструктура в найближчому доступі. Ліфт у будинку спускається на 0 поверх, що дуже зручно, адже не треба долати сходи для входу і також має індивідуальний ключ-доступ. Підходить під продаж по Є-оселя. Всі документи готові..
Вид обєкта: Новобудова;
Тип будинку: Житловий фонд від 2021 р.;
Назва ЖК: Мирний;
Тип стін: Цегляний;
Клас житла: Еліт;
Планування: Багаторівнева;
Cанвузол: 2 і більше;
Опалення: Індивідуальне газове;
Ремонт: Після будівельників;
Меблювання: Ні;
Побутова техніка: Без побутової техніки;
Мультимедіа: Без мультимедіа;
Комфорт: Грузовий ліфт, Ліфт, Гостьовий паркінг, Балкон, лоджія, Госп. приміщення, комора;
Комунікації: Електрика, Центральна каналізація, Газ, Асфальтована дорога, Центральний водопровід;
Інфраструктура (до 500 метрів): Парк, зелена зона, Школа, Відділення банку, банкомат, Лікарня, поліклініка, Супермаркет, ТРЦ, Дитячий садок, Відділення пошти, Аптека, Магазин, кіоск, Ринок, Ресторан, кафе, Дитячий майданчик, Зупинка транспорту;
Ландшафт (до 1 км.): Парк, Річка, Ліс;