Продаж 2 кімнатної квартири в Центральній частині міста після будівельників індивідуальне опалення (№ 213-043-851)

Ціна: 53 000 $
Характеристики
Ціна: | 53 000 $ |
---|---|
№ об'єкта: | 213-043-851 |
Кімнат: | 2 |
Поверх: | 1 / 9 |
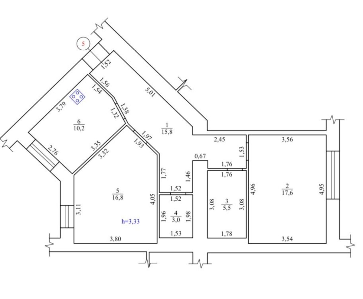
Площа: | 68 / - / 10 м2 |
єОселя/Іпотека: | + |
Адреса: Полтавська, Полтава
Центр, вул.Затишна,двокімнатна квартира у цегляному будинку.
Центр,вул.Затишна!Продам двокімнатну квартиру площею 70.кв. в у новому цегляному будинку зданому в експлуатацію! Опалення індивідуальне газове(котел в кожній квартирі)! Стан після будівельників. Ціна 53000$.
Вид обєкта: Новобудова;
Тип будинку: Житловий фонд 2011-2020-і;
Тип стін: Цегляний;
Клас житла: Комфорт;
Планування: Роздільна;
Cанвузол: Роздільний;
Опалення: Індивідуальне газове;
Ремонт: Після будівельників;
Мультимедіа: Швидкісний інтернет, Кабельне, цифрове ТБ;
Комфорт: Ліфт;
Комунікації: Вивіз відходів, Газ, Електрика, Центральна каналізація, Асфальтована дорога, Центральний водопровід;
Інфраструктура (до 500 метрів): Лікарня, поліклініка, Школа, Магазин, кіоск, Супермаркет, ТРЦ, Кінотеатр, театр, Аптека, Центр міста, Парк, зелена зона, Залізнична станція, Відділення банку, банкомат, Відділення пошти, Автовокзал, Ресторан, кафе, Дитячий садок, Ринок, Дитячий майданчик;
Ландшафт (до 1 км.): Парк;