Продається квартира Полтавська, Полтава, Шевченківський (Жовтневий), Боженка (№ 213-074-765)

Ціна: 50 000 $
Характеристики
Ціна: | 50 000 $ |
---|---|
№ об'єкта: | 213-074-765 |
Кімнат: | 2 |
Поверх: | 5 / 10 ліфт |
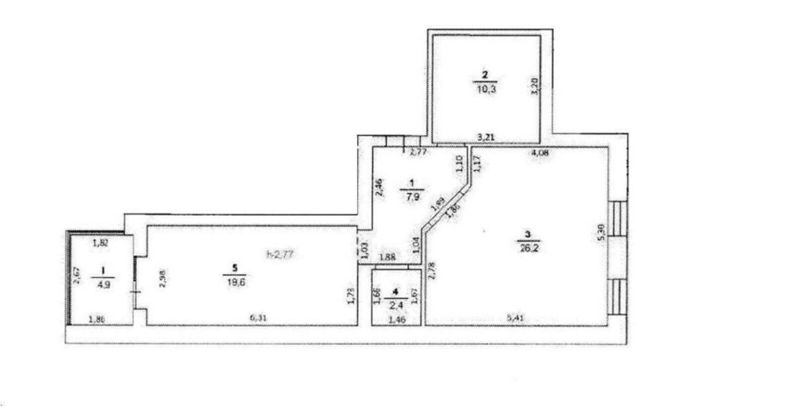
Площа: | 72 / - / 21 м2 |
єОселя/Іпотека: | - |
Додатково: | новобудова |
Адреса: Полтавська, Полтава, Шевченківський (Жовтневий), Боженка
ЦЕНА СНИЖЕНА ПРОДАМ 2-х ком. квартиру 72 кв.м. ТОРГ.. ДОМ СДАН. Коммуникации подключены ПРОДАМ двухкомнатную квартиру в кирпичном доме с общей площадью 72 м. кв., и жилой площадью 33 м. кв. Находится на 5 этаже 10-ти этажного здания. Удобная планировка, кухня-студия 21 м. кв., Индивидуальное отопление в квартире, что делает комфортным проживание и сэкономит расходы. Высота потолков: 2.80 м. Хороший вид из окон, Подключены газ, вода, свет. Застеклён балкон, бронированные двери. Лифт OTIS .Вид обєкта: Новобудова;Тип угоди: Переуступка;Тип стін: Цегляний;Клас житла: Комфорт;Опалення: Індивідуальне газове;Ремонт: Після будівельників;Комфорт: Ванна, Балкон, лоджія, Панорамні вікна, Охорона території, Паркувальне місце, Ліфт, Госп. приміщення, комора;Комунікації: Газ, Центральний водопровід, Електрика, Центральна каналізація, Каналізація септик;Інфраструктура (до 500 метрів): Зупинка транспорту, Магазин, кіоск, Супермаркет, ТРЦ, Аптека;
АН'Галерея Нерухомості'