Продаж квартири Новобудова. № 213-246-393 (№ 213-246-393)
Ціна: 80 000 $

Полтава, Полтавська, Шевченківський (Жовтневий), Сади 2
Характеристики
| Ціна: | 80 000 $ |
|---|---|
| № об'єкта: | 213-246-393 |
| Кімнат: | 3 |
| Поверх: | 9 / 9 |
| Площа: | 75 / - / 4 м2 |
| єОселя/Іпотека: | - |
Опис
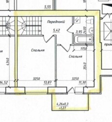
Новобудова! 3 кімнатна квартира-дуплекс з видом на ставки + комора.Продам трьох кімнатну квартиру у новобудові на Садах-2. Квартира складається з двох рівнів: на першому розміщені передпокій (5,93 м2), гостьова кімната (17,81 м2), кухня (11,9 м2) та санвузол, на другому - дві зручні спальні (13,78 та 11,3 м2) та велика ванна кімната. Санвузол на першому рівні можна дообладнати душовою кабінкою. Загальна площа: 75,41 метри. Квартира на дев?ятому та десятому поверхах вже зданого будинку (зданий у 2023 р.), всі документи оформлені. В будинку вже підключені газ, електрика, вода та каналізація, є лічильники. Індивідуальне газове опалення - котел вже встановлений. На території будинку є відеоспостереження. Будинок цегляний із гарною енергоефективністю. Вікна виходять у двір, з балкона є вид також і на ставки. До квартири додатково йде власна комора в підвалі, також з документами. Можливий розумний торг. Звертайтеся за додатковою інформацією, Вид обєкта: Новобудова;Тип будинку: Житловий фонд від 2021 р.;Тип стін: Цегляний;Клас житла: Комфорт;Планування: Багаторівнева;Cанвузол: 2 і більше;Опалення: Індивідуальне газове;Ремонт: Після будівельників;Меблювання: Ні;Побутова техніка: Без побутової техніки;Комфорт: Відеоспостереження, Балкон, лоджія, Ліфт, Госп. приміщення, комора;Комунікації: Центральний водопровід, Газ, Центральна каналізація, Електрика, Асфальтована дорога, Вивіз відходів;Інфраструктура (до 500 метрів): Дитячий садок, Аптека, Лікарня, поліклініка, Школа, Ресторан, кафе, Зупинка транспорту, Відділення пошти, Ринок, Магазин, кіоск, Відділення банку, банкомат, Автовокзал, Супермаркет, ТРЦ, Парк, зелена зона, Дитячий майданчик;Ландшафт (до 1 км.): Озеро, Парк, Пагорби;
















