В долгосрочную аренду офис открытого типа М.Бирюзова 310 м2 первый этаж Фасадный вход (№ 1-462-842)
Ціна: 150 грн. + комунальні

Адреса: Бирюзова Маршала ул., Полтава, Полтавська, Київський, Браїлки
Характеристики
| Ціна: | 150 грн. + комунальні |
|---|---|
| № об'єкта: | 1-462-842 |
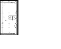
| Тип: | торгово-офісний центр |
| Площа: | 320 м2 |
| Поверх: | 1 / 2 |
| Додатково: | окремий вхід, кондиціонер, парковка |
Опис
В долгосрочную аренду площади открытого типа площадью Помещения находятся в г. Полтава по улице Маршала Бирюзова, (по маршруту кольцевого автобуса). Отдельный вход. Отдельные санузлы. В наличии все необходимые коммуникации. Красная линия, рядом две остановки кольцевого маршрута автобуса. Предлагаемые помещения находятся на территории с круглосуточной охраной и развивается как бизнес-центр с производственными, офисными, складскими и торговыми помещениями, на территории автостоянка на 50 автомобилей, рядом столовая.
Услуги агенства 50% единоразово (без предоплат и авансов), только по факту подписания договора.
АН'Галерея Недвижимости' код
№ 1462842











