Аренда офиса в Центре (№ 1-483-093)
Ціна: 10 000 грн. + комунальні

Адреса: Пушкина ул., Полтава, Полтавська, Шевченківський (Жовтневий), Центр
Характеристики
| Ціна: | 10 000 грн. + комунальні |
|---|---|
| № об'єкта: | 1-483-093 |
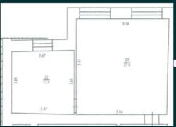
| Площа: | 41 м2 |
| Кабінетів: | 2 |
| Поверх: | 1 / 3 |
Опис
Аренда офиса в Центре. Помещение состоит из двух кабинетов 27,6+12.4 кв м .Кабинеты проходные. офис находиться на 1-ом этаже. .Стоимость аренды 240 грн за кв.м Дополнительная оплата за электроенергию по счетчикам.
Услуги агенства 50% по факту подписания договора.
АН'Галерея Недвижимости'








