Продається ділянка Нижні Млини, Полтавський, Полтавська (№ 26-152-201)
Ціна: 1 600 $

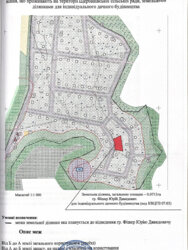
Адреса: Нижні Млини, Полтавський, Полтавська
Характеристики
| Ціна: | 1 600 $ |
|---|---|
| № об'єкта: | 26-152-201 |
| Площа: | 7 сот |
Опис
Продам земельну ділянку, за мінімальну та нижче ринкової ціни -0, 0713 га, земельну ділянку, для дачного будівництва
Ділянка знаходиться за туристичною базою Сенегал, що в Нижніх Млинах(реальному покупцю присутній гарний торг)
















